162 Ontario Street W, St. Catharines, ON

$50,000

Previous Next

About 162 Ontario Street W

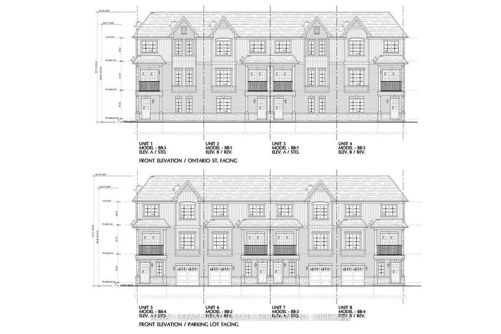
Vacant lot beside this lot(listed) to be sold in conjunction with this lot. Shovel-Ready Development Opportunity for 8 Townhouses! An exceptional investment property with development land in a central location. This offering includes vacant land and is situated directly across the street from a $145 million senior housing development. The lot next door is to be sold in conjunction with this land, providing a combined lot dimension of approximately 107.32 x 131.14. A detailed package is available upon request. Agent and Buyer to verify all measurements themselves. Vacant lot beside this lot(listed) to be sold in conjunction with this lot. The Two Lot's Are Separately Deeded.

Features of 162 Ontario Street W

MLS® # X12274155
Price $50,000
Bathrooms 0.00
Acres 0.00
Type Residential Freehold
Sub-Type Vacant Land
Status Active

Community Information

Address 162 Ontario Street W
Area Niagara
Subdivision 451 - Downtown
City St. Catharines
Province ON
Postal Code L2R 5K5

Amenities

Is Waterfront No
Waterfront None

Interior

Fireplace No

Listing Details

OfficeROYAL LEPAGE REAL ESTATE SERVICES LTD.

Listing Map

Request a Showing

Provide a valid email address.
When would you like to view this property?