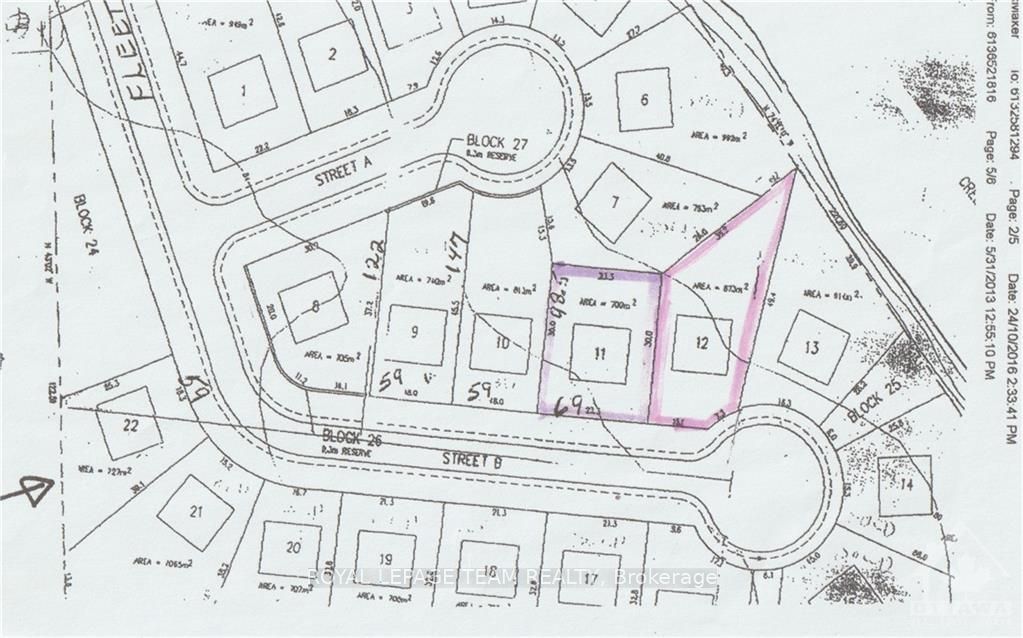
Lot 11 Flett Street 11, Edwardsburgh/Cardinal, ON

$149,000

Previous Next

About Lot 11 Flett Street 11

WONDERFUL SUBDIVISION WITH EXTRAORDINARILY BEAUTIFUL HOMES. COVENANTS IN PLACE ( IN DOCUMENTS). PERFECT SITE FOR YOUR NEW HOME BUILD. WATER ACCESS TO DEEP WATER OF THE GALOP CANAL SYSTEM AND THE ST. LAWRENCE SEAWAY.

Features of Lot 11 Flett Street 11

MLS® # X10425114
Price $149,000
Bathrooms 0.00
Acres 0.00
Type Residential Freehold
Sub-Type Vacant Land
Style Unknown
Status Active

Community Information

Address Lot 11 Flett Street 11
Area Leeds and Grenville
Subdivision 806 - Town of Cardinal
City Edwardsburgh/Cardinal
Province ON
Postal Code K0E 1E0

Amenities

Garages Unknown
Is Waterfront No
Waterfront Indirect
Pool None

Interior

Heating Unknown
Cooling Unknown
Fireplace No
Basement Unknown

Exterior

Exterior Unknown

Listing Details

OfficeROYAL LEPAGE TEAM REALTY

Listing Map

Request a Showing

Provide a valid email address.
When would you like to view this property?