17 Main Street E, New Tecumseth, ON

$479,000

Previous Next

About 17 Main Street E

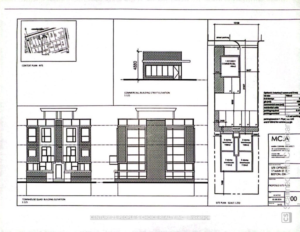
(under power of sale)Nestled amidst a main artery lies a vacant lot, a canvas awaiting the strokes of architectural innovation. This prime piece of real estate spans a generous expanse, offering a tantalizing opportunity for a visionary entrepreneur or developer. At the forefront of this blank slate stands the promise of commerce, where a sleek and modern commercial unit can rise, its facade beckoning with possibilities. With ample space to showcase products or services, this commercial frontage holds the key to captivating the attention of passersby and attracting a steady stream of clientele. Yet, beyond the realm of commerce, lies a quieter enclave awaiting transformation. Towards the rear of the lot, a sanctuary of residential bliss emerges, offering a harmonious blend of urban convenience and suburban tranquility. Here, envisioned are four distinct residential units, each crafted with meticulous attention to detail and designed to epitomize modern comfort and luxury living. Pre-consult meeting is scheduled with the city Furthermore hundreds of homes are being built in the surrounding area, providing clientele for the commercial business. As the sun sets on the horizon, casting a golden hue upon the vacant lot, it becomes a beacon of promise and potential, a testament to the boundless opportunities that await those with the vision to seize them. In the heart of the city, amidst the rhythm of urban life, this vacant lot stands as a testament to the enduring spirit of innovation and transformation. It is not merely a piece of land but a canvas awaiting the strokes of architectural genius, ready to shape the landscape of tomorrow.

Features of 17 Main Street E

MLS® # N12311872
Price $479,000
Bathrooms 0.00
Acres 0.00
Type Residential Freehold
Sub-Type Vacant Land
Style 2-Storey
Status Active

Community Information

Address 17 Main Street E
Area Simcoe
Subdivision Beeton
City New Tecumseth
Province ON
Postal Code L0G 1A0

Amenities

Is Waterfront No
Waterfront None

Interior

Fireplace No

Listing Details

OfficeCENTURY 21 PEOPLE`S CHOICE REALTY INC.

Listing Map

Request a Showing

Provide a valid email address.
When would you like to view this property?